首页
关于我们
院情简介
组织架构
企业资质
企业荣誉
新闻资讯
院内新闻
行业资讯
设计团队
第一综合设计院
第二综合设计院
第三综合设计院
第四综合设计院
第五综合设计院
第六综合设计院
第七综合设计院
教师创作设计研究院
建筑工程技术研究院
人文景观研究院
景观与公共艺术研究院
空间与环境艺术研究院
机电设计研究院
生态与园林研究院
室内与陈设研究院
新型城镇化研究院
建筑集成中心
未来城乡研创中心
青年创作中心
设计文化研究中心
王伟大师工作室
胡辉工作室
建筑数字艺术研究中心
项目展示
建筑设计
规划设计
景观设计
室内设计
文旅设计
艺术品设计
相关业绩
规划
陈设
建筑
景观
幕墙
室内
雕塑品
招标公告
规划
陈设
建筑
景观
幕墙
室内
雕塑品
联系我们
联系方式
人才招聘
CASE
EXHIBITION
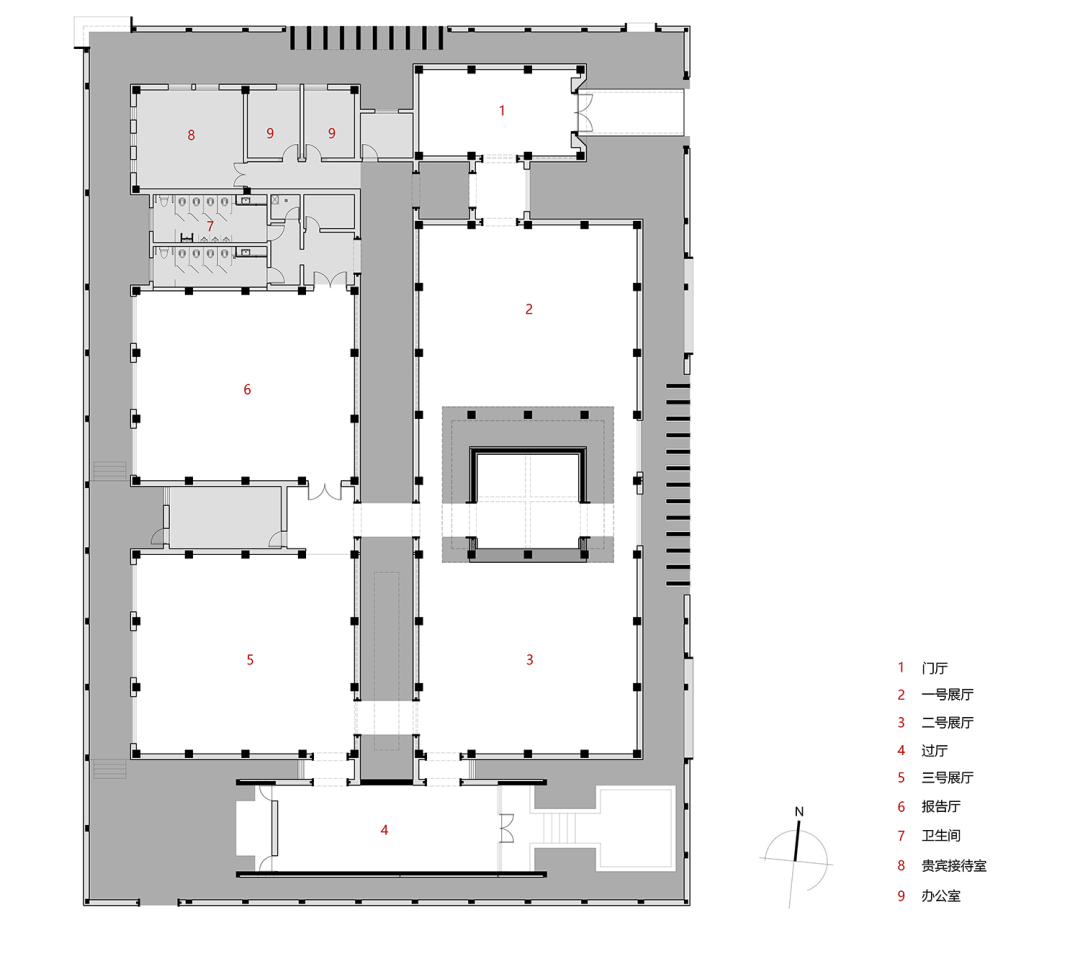
建筑设计
刘谦初红色文化园
项目位置
青岛平度市
项目面积
6000平方米
设计时间
2017年
建成时间
2020年